Stufe zurück

Eigentum zur Kapitalanlage im beliebten Leipzig-Gohlis, provisionsfrei und inklusive T...

Eigentumswohnung, D-04157 Leipzig, Kaufpreis: 154.000,00 €

Objektdaten

Kaufpreis €154.000,00 Mietpreis* €350,45
Wohnfläche m²45,00 Zimmer2
Baujahr1995 Etage2
Jahresmieteinnahmen €4.205,40 vermietet ja
Kaufpreis/m² €3.422,22 Mieteinnahmen (IST) €4.205,40
Online-Nr.12112213
Interne Nr.Kleiststr. 4 WE 21 Objekt-Nr.0-8878936

Details

Befeuerung
Nutzflächen
Bodenbeläge
Förderanlagen

Kurzexposé

Wäre Leben und Wohnen in Gohlis nicht schön? Wenn Sie diese Frage mit einem Ja beantworten können, sind Sie hier goldrichtig. In einer ruhigen und schönen Seitenstraße in Gohlis-Mitte liegt das 1995 errichtete und über die Jahre immer stets gepflegte Mehrfamilienhaus. Das Treppenhaus ist durch die freistehende Bauweise des Objekts hell, sauber und wirkt freundlich. Darüber hinaus bietet Ihnen der Fahrstuhl eine angenehme Alternative zur Treppe.

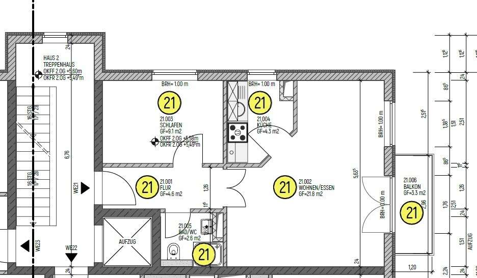
Die helle Eigentumswohnung im Hinterhaus befindet sich im 2. Obergeschoss und bietet Ihnen auf ca. 45 m² viele Entfaltungsmöglichkeiten. Die gut geschnittenen 2 Zimmer sind mit Laminat in den Wohnräumen sowie mit Fliesen in der Küche und im Bad ausgestattet und bieten genügend Raum für gemütliche Stunden. Und sollte der Raum nicht genügen, bietet Ihnen ein eigenes Abteil im Keller weiteren Stauraum. Eine großartige Besonderheit der Wohnung ist der großzügige Balkon. Freuen Sie sich auf ein schönes Frühstück an warmen Tagen an der frischen Luft. Wenn Sie zum Feierabend von der Arbeit nach Hause kommen, bietet diese Wohnung noch ein weiteres Highlight für Sie. Anstatt gestresst noch nach einem Parkplatz zu suchen, können Sie in Ruhe und entspannt auf Ihrem eigenen Privatparkplatz parken. Ein eigener Duplex-Garagenstellplatz ist in diesem Angebot mit inkludiert.

Im Jahre 2020 wurde eine umfassende Strangsanierung durchgeführt, um die Wohnqualität und Gebäudesicherheit zu erhöhen. Im Zuge dieser Arbeiten wurden sämtliche Leitungen (Wasser, Abwasser, Heizung) modernisiert und auf den aktuellen technischen Stand gebracht. Gleichzeitig erfolgte die Erneuerung der Heizungsanlage.

" frisch, engagiert, solide "

Die Künne Immobilien Gruppe ist professioneller Dienstleister der Immobilienbranche und steht Ihnen in den Bereichen Projektentwicklung, Verkauf, Vermietung, Verwaltung und Facility Management zur Verfügung.

Für weitere Informationen und Einblicke besuchen Sie unsere Homepage: www.kuenne-gruppe.de Sie wollen Ihre Immobilie verkaufen? Egal ob Mehrfamilien- oder Einfamilienhaus, Eigentumswohnung, Grundstück oder Neubau- bzw. Bauträgerprojekt. Wir vermitteln kompetent, transparent und zügig Ihre Immobilie, bundesweit.

Lagebeschreibung

Gohlis ist ein vornehmlich ruhiges Wohngebiet mit großbürgerlichen Flair. Das Rosental, eine Parklandschaft mitten in der Stadt, und der angrenzende Zoologische Garten, der Zoo der Zukunft, sind nicht weit entfernt - an einem sonnigen Tag lassen sich die Strecken sogar zu Fuß zurücklegen.
Der Stadtteil erweist sich als überaus attraktives Wohnviertel in sehr guter Lage: das Stadtzentrum ist nicht weit entfernt und kann bequem mit den Tramlinien 4 und 12 erreicht werden. Darüber hinaus besteht eine gute Verkehrsanbindung mit S-Bahn und Straßenbahn zu BMW, Porsche und DHL.

Energieausweis

Energieverbrauch (EV)
Objekt-Nr.: 0-8878936 · Interne Nr.: Kleiststr. 4 WE 21 · Online-Nr.: 12112213 · Flächen- und Maßangaben sind ca.-Werte.
Es gelten die Allgemeinen Geschäftsbedingungen des Anbieters.
* Monatliche Kaltmiete zzgl. Nebenkosten

Immobilien-Schnellanfrage

Ich möchte mehr Infos zu diesem Objekt!
Herr Frau
Vorname*
Nachname*
Telefon
E-Mail*
Ich habe die Datenschutzerklärung gelesen und bin mit der Verarbeitung meiner Daten sowie einer Kontaktaufnahme einverstanden.*
Ausführliches Formular

Anbieter

Künne Immobilien Gruppe

Inh. Marko Künne

Käthe-Kollwitz-Straße 58c

D-04109 Leipzig

0341 4429566

0341 2253930

E-Mail senden

weitere Wohnungen

60 m²570 EUR
121 m²837 EUR
66 m²115.000 EUR
119 m²327.950 EUR
Datenschutz  ·   Portal-Impressum  ·   Drucken...  ·  nach oben