Stufe zurück

**Komfortable 2-Raum-Wohnung in Holzhausen: 66,10 m² mit hochwertiger Ausstattun...

Dachgeschoss-ETW, D-04288 Leipzig, Kaufpreis: 290.000,00 €

Objektdaten

Kaufpreis €290.000,00 Mietpreis* €991,50
Wohnfläche m²66,10 Zimmer2
Etage2 Kaufpreis/m² €4.387,29
Kaufpreis Tiefgarage €29.000,00
Online-Nr.12314012 Interne Nr.WE 08
Objekt-Nr.0-9044090  

Details

Wohnflächen
Nutzflächen
Park-/Hofflächen
Bodenbeläge
Zustand
Bäder

Kurzexposé

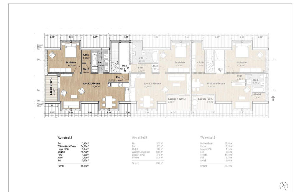
Zum Verkauf steht eine 65,95 m² große 2-Zimmer-Wohnung im modernen Landhausstil-Neubauprojekt „Sonnenhof“ im Leipziger Stadtteil Holzhausen. Das Gebäude fügt sich harmonisch in die umliegende Bebauung ein und sticht dennoch durch seine schlichte, aber ansprechende Architektur hervor.

Erleben Sie das harmonische Zusammenspiel aus traditionellem Charme und modernem Komfort in diesem neuen, exklusiven Haus in Holzhausen. Die lichtdurchfluteten, großzügigen Räume bieten eine perfekte Basis für den modernen Lebensstil. Das Haus eignet sich ideal für Singles, junge Paare, Best Ager, Lebensgemeinschaften und Familien, die viel Raum für ihre individuellen Bedürfnisse und Gestaltungsideen suchen.

Die Wohneinheit verfügt über zwei Räume, ein Masterbad mit bodengleicher Dusche und Badewanne sowie einen Abstellraum. Das über 34 m² große, lichtdurchflutete Wohnzimmer ist der Mittelpunkt der Wohnung und führt direkt auf den Balkon. Die offene Küche wurde geschickt als Nische im Wohnbereich integriert, sodass die Bereiche Wohnen, Essen und Kochen harmonisch ineinander übergehen, jedoch dennoch voneinander abgegrenzt bleiben.

Dank der variantenreichen Grundrissgestaltung können Sie Ihre Wohnung nach eigenen Wünschen anpassen und den Wohnraum ideal auf Ihre Bedürfnisse abstimmen. In den meisten Bädern erwartet Sie eine bodengleiche Dusche und eine Badewanne, um Ihren Start in den Tag angenehm zu gestalten. Der hohe Wohnkomfort wird durch hochwertige Laminat- und Vinylböden sowie Fußbodenheizung unterstützt. In den Küchen und Bädern wurden Fliesen verlegt, während Parkettböden auf Wunsch gegen Aufpreis möglich sind.

Die Tiefgarage bietet Platz für 7 Stellplätze. Ein Stellplatz ist für 29.000 EUR erhältlich.


Die drei Wohnungen im Erdgeschoss profitieren von einem direkten Zugang zum Garten. Zudem wird im Vorgarten ein Kinderspielplatz mit dem Gartenhaus „Frieda“ sowie ein Sandkasten mit Sitzgelegenheiten und Bänken entstehen – ideal für Familien mit Kindern.


** GEG 2024 – Eine nachhaltige Investition in die Zukunft **

„Erdwärme ist eine nachhaltige und umweltfreundliche Energiequelle und gleichzeitig effizient.
Eine moderate Kühlung bei Hitzeperioden im Sommer - auch das würde funktionieren bei Nutzung von Erdwärme, weil Wärmepumpen die Raumtemperatur ebenfalls absenken können.

Diese Erdwärme wollen wir als Baustein der Energiewende für eine klimafreundliche Wärme- und Warmwasserversorgung in unserem Neubauprojekt „Sonnenhof" nutzbar machen.

Fast zwei Drittel ihres Gesamtenergieverbrauchs brauchen Privathaushalte allein für die Wärmeversorgung, die zumeist noch aus fossilen Quellen wie Kohle, Öl oder Erdgas stammt.

Hier schlummert also großes Klimaschutz-Potenzial.
Daher ist es unser Ziel, für unsere Projekte eine klimafreundliche dezentrale Wärmeversorgung zu etablieren, die ohne fossile Energieträger auskommt.
Dies können wir mit der Tiefengeothermie erreichen.“

Steuervorteile für Wohnungsbau: Erhöhte degressive AfA 5%

Die degressive Abschreibung gilt für Wohnungen und Wohngebäude mit Baubeginn ab dem 01.10.2023 und mindestens dem Effizienzhaus-Standard 55. Es ist keine Baukostenobergrenze vorgesehen. Im ersten Jahr können fünf Prozent der Investitionskosten steuerlich geltend gemacht werden. In den folgenden Jahren sind es fünf Prozent des Restwertes, die steuerlich in Abzug gebracht werden können.

Beispielrechnung: Bei 400.000 EUR Investitionskosten (Gebäudewert) sind im ersten Jahr 20.000 EUR (fünf Prozent von 400.000 EUR), im zweiten Jahr 19.000 EUR (400.000 EUR abzüglich 20.000 EUR vom ersten Jahr = 380.000EUR Restwert) usw. steuerlich abzugsfähig.

Alle Informationen hierzu erhalten sie auf Anfrage von unseren Immobilienberatern.


" frisch, engagiert, solide "

Die Künne Immobilien Gruppe ist professioneller Dienstleister der Immobilienbranche und steht Ihnen in den Bereichen Projektentwicklung, Verkauf, Vermietung, Verwaltung und Facility Management zur Verfügung.

Für weitere Informationen und Einblicke besuchen Sie unsere Homepage: www.kuenne-gruppe.de Sie wollen Ihre Immobilie verkaufen? Egal ob Mehrfamilien- oder Einfamilienhaus, Eigentumswohnung, Grundstück oder Neubau- bzw. Bauträgerprojekt. Wir vermitteln kompetent, transparent und zügig Ihre Immobilie, bundesweit.

Alle Angaben sind ohne Gewähr und basieren ausschließlich auf Informationen, die uns von unserem Auftraggeber zur Verfügung gestellt wurden. Wir übernehmen keine Gewähr für die Vollständig, Richtigkeit und Aktualität dieser Angaben

Lagebeschreibung

Leipzig blickt auf eine lange und historisch wertvolle Geschichte zurück. Vor über 1.000 Jahren begann die Stadt am Kreuzungspunkt der wichtigsten Handelswege zu existieren. Viele bedeutende Ereignisse sind untrennbar mit dem Namen Leipzig verbunden. Heute präsentiert sich die Stadt als dynamische Wirtschafts- und Kulturmetropole in Mitteldeutschland. Das Herz Leipzigs schlägt im kompakten Stadtzentrum, das nur etwa 1 Quadratkilometer groß ist. In den nach 1990 liebevoll restaurierten historischen Messepalästen und Passagen finden sich zahlreiche Geschäfte, Restaurants und Cafés, die zum Bummeln und Verweilen einladen. Leipzig bietet für jeden etwas: Kulturhighlights für Musik- und Kunstfreunde, die lebendige Kaffeehauskultur, traditionsreiche Gaststätten, Shopping in historischen Handelshöfen und Passagen, sowie besondere Erholungs- und Freizeiterlebnisse. Nicht zuletzt ist die Stadt für ihr buntes und vielseitiges Nachtleben bekannt. Die hohe Anziehungskraft Leipzigs sorgt für einen dynamischen Wohnungsmarkt, wobei Neubauimmobilien besonders gefragt sind.

Der Stadtteil Holzhausen liegt im Südosten von Leipzig und ist besonders bei Naturliebhabern sehr gefragt. Umgeben von kleinen Wäldern, historischen Gutshöfen, grünen Wiesen und Feldern bietet der Stadtteil einen ländlichen Charakter mit viel Ruhe und Erholung. Gleichzeitig ist Holzhausen hervorragend an den öffentlichen Verkehr angebunden: Die Buslinie 74, die S-Bahn und der Interconnex sind in etwa sieben Gehminuten erreichbar. Die Autobahn A 38 ist ebenfalls nur wenige Fahrminuten entfernt.

Im Ortskern von Holzhausen finden Sie eine gute Auswahl an lokalen Annehmlichkeiten, darunter drei Bäckereien, ein Fleischer, ein Reisebüro, eine KFZ-Werkstatt, ein Autohandel und eine Grundschule. Zwei Kindergärten sorgen für eine familienfreundliche Umgebung. Darüber hinaus gibt es zwei Gastronomiebetriebe mit deutscher und italienischer Küche. Die medizinische Versorgung ist ebenfalls sehr gut: Es gibt einen Allgemeinmediziner sowie Fachärzte für verschiedene Disziplinen in einem Ärztehaus.

In nur fünf Fahrminuten erreichen Sie das Parkkrankenhaus und das Herzzentrum Leipzig.

Energieausweis

Objekt-Nr.: 0-9044090 · Interne Nr.: WE 08 · Online-Nr.: 12314012 · Flächen- und Maßangaben sind ca.-Werte.
Es gelten die Allgemeinen Geschäftsbedingungen des Anbieters.
* Monatliche Kaltmiete zzgl. Nebenkosten

Immobilien-Schnellanfrage

Ich möchte mehr Infos zu diesem Objekt!
Herr Frau
Vorname*
Nachname*
Telefon
E-Mail*
Ich habe die Datenschutzerklärung gelesen und bin mit der Verarbeitung meiner Daten sowie einer Kontaktaufnahme einverstanden.*
Ausführliches Formular

Anbieter

Künne Immobilien Gruppe

Inh. Marko Künne

Käthe-Kollwitz-Straße 58c

D-04109 Leipzig

0341 4429566

0341 2253930

E-Mail senden

weitere Wohnungen

60 m²570 EUR
121 m²837 EUR
66 m²115.000 EUR
119 m²327.950 EUR
Datenschutz  ·   Portal-Impressum  ·   Drucken...  ·  nach oben