Stufe zurück

Preiswertes Bauland für Ihr Einfamilienhaus

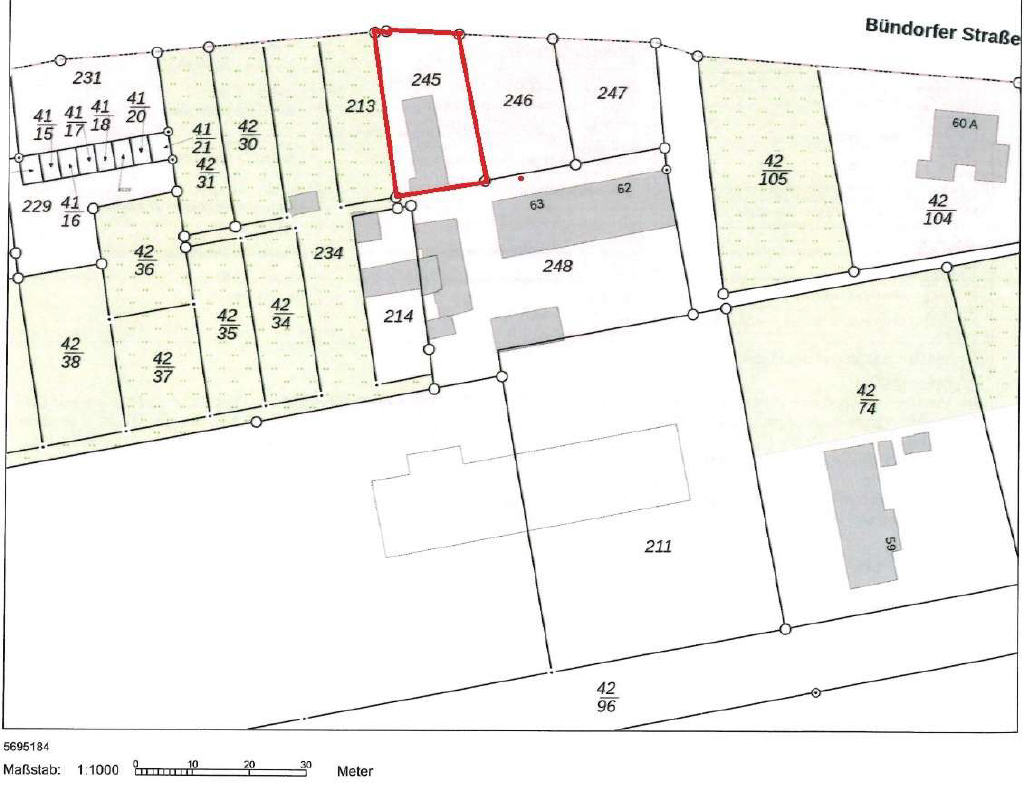
Baugrundstück, D-06258 Schkopau, Kaufpreis: 47.850,00 €

Objektdaten

Kaufpreis €47.850,00 Fläche m²435,00
Kaufpreis/m² €110,00 Online-Nr.12112362
Interne Nr.GSt 1 Bündorfer Str. Objekt-Nr.1-8879059

Details

Erschließung

Kurzexposé

Zum Verkauf steht ein 435 qm großes Grundstück in Schkopau. Das Grundstück ist vollständig erschlossen und sieht bevorzugt eine Bebauung mit einem Einfamilienhaus vor. Auf dem Grundstück befindet sich im Moment noch ein alter kleiner Garagenkomplex mit 3 Einzelgaragen und einem Schuppen.


" frisch, engagiert, solide "

Die Künne Immobilien Gruppe ist professioneller Dienstleister der Immobilienbranche und steht Ihnen in den Bereichen Projektentwicklung, Verkauf, Vermietung, Verwaltung und Facility Management zur Verfügung.

Für weitere Informationen und Einblicke besuchen Sie unsere Homepage: www.kuenne-gruppe.de Sie wollen Ihre Immobilie verkaufen? Egal ob Mehrfamilien- oder Einfamilienhaus, Eigentumswohnung, Grundstück oder Neubau- bzw. Bauträgerprojekt. Wir vermitteln kompetent, transparent und zügig Ihre Immobilie, bundesweit.

Lagebeschreibung

Schkopau ist eine Gemeinde im Saalekreis in Sachsen-Anhalt. Der Ort Schkopau liegt rund 30 km westlich von Leipzig, 6 km nördlich von Merseburg und 11 km südlich von Halle (Saale).

Die direkte Nachbarschaft ist von dörflicher Wohnbebauung in Form von Ein- und Zweifamilienhäusern sowie Hofgrundstücken geprägt. Es befinden sich auch vereinzelte Gewerbebetriebe in der nähren Umgebung.

Verkehrsnetz:
- Durch die Gemeinde verlaufen die Bundesstraßen B91 und B181.
- Überregional ist Schkopau durch die Bundesautobahn A38 angebunden. Auch die Bundesautobahnen A9 , A14 und
A143
befinden sich in der Nähe.
- Im Schienenverkehr gibt es RB-Anschlüsse. Der nächste IC-Anschluss befindet sich im rund 10km entfernten Halle.
- Der nächstgelegene Flughafen ist der Flughafen Leipzig/Halle, welcher ca. 30km entfernt liegt.
Objekt-Nr.: 1-8879059 · Interne Nr.: GSt 1 Bündorfer Str. · Online-Nr.: 12112362 · Flächen- und Maßangaben sind ca.-Werte.
Es gelten die Allgemeinen Geschäftsbedingungen des Anbieters.

Immobilien-Schnellanfrage

Ich möchte mehr Infos zu diesem Objekt!
Herr Frau
Vorname*
Nachname*
Telefon
E-Mail*
Ich habe die Datenschutzerklärung gelesen und bin mit der Verarbeitung meiner Daten sowie einer Kontaktaufnahme einverstanden.*
Ausführliches Formular

Anbieter

Künne Immobilien Gruppe

Inh. Marko Künne

Käthe-Kollwitz-Straße 58c

D-04109 Leipzig

0341 4429566

0341 2253930

E-Mail senden

weitere Unbebaute Grundstücke / Priv. Nutzung

2.840 m²199.000 EUR
500 m²29.500 EUR
995 m²695.000 EUR
1.185 m²130.350 EUR
Datenschutz  ·   Portal-Impressum  ·   Drucken...  ·  nach oben