Kurzexposé
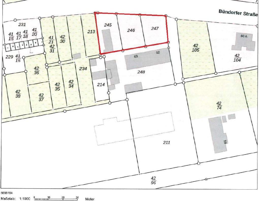
Zum Verkauf steht ein 1185 qm großes Grundstück in Schkopau, welches aus 3 Flurstücken besteht. Das Grundstück ist vollständig erschlossen und sieht bevorzugt eine Bebauung mit einem Mehrfamilienhaus, einem Doppelhaus oder mehreren Einfamilienhäusern vor.
" frisch, engagiert, solide "
Die Künne Immobilien Gruppe ist professioneller Dienstleister der Immobilienbranche und steht Ihnen in den Bereichen Projektentwicklung, Verkauf, Vermietung, Verwaltung und Facility Management zur Verfügung.
Für weitere Informationen und Einblicke besuchen Sie unsere Homepage: www.kuenne-gruppe.de Sie wollen Ihre Immobilie verkaufen? Egal ob Mehrfamilien- oder Einfamilienhaus, Eigentumswohnung, Grundstück oder Neubau- bzw. Bauträgerprojekt. Wir vermitteln kompetent, transparent und zügig Ihre Immobilie, bundesweit.
Lagebeschreibung
Schkopau ist eine Gemeinde im Saalekreis in Sachsen-Anhalt. Der Ort Schkopau liegt rund 30 km westlich von Leipzig, 6 km nördlich von Merseburg und 11 km südlich von Halle (Saale).
Die direkte Nachbarschaft ist von dörflicher Wohnbebauung in Form von Ein- und Zweifamilienhäusern sowie Hofgrundstücken geprägt. Es befinden sich auch vereinzelte Gewerbebetriebe in der nähren Umgebung.
Verkehrsnetz:
- Durch die Gemeinde verlaufen die Bundesstraßen B91 und B181.
- Überregional ist Schkopau durch die Bundesautobahn A38 angebunden. Auch die Bundesautobahnen A9 , A14 und
A143
befinden sich in der Nähe.
- Im Schienenverkehr gibt es RB-Anschlüsse. Der nächste IC-Anschluss befindet sich im rund 10km entfernten Halle.
- Der nächstgelegene Flughafen ist der Flughafen Leipzig/Halle, welcher ca. 30km entfernt liegt.
216.73.216.109:57594