Stufe zurück

Sanierungsobjekt + Bauplatz

Zweifamilienhaus, D-68794 Oberhausen-Rheinhausen, Kaufpreis: 439.000,00 €

Objektdaten

Kaufpreis €439.000,00 Wohnfläche m²208,28
Zimmer9,5 Grundstück m²505,00
Baujahr1925 Stellplätze2
Gesamtfläche m²208,28 Kaufpreis/m² €2.107,74
Frei absofort
Online-Nr.12387739 Objekt-Nr.0-7914

Kurzexposé

Das ca. 1925 erbaute Gebäude wurde 1965 im Obergeschoss erweitert und 1986 umfangreich an.- und umgebaut. Wodurch die heutige Wohnfläche von 208,28 m² verteilt auf 2 Etagen entstand. Das sanierungsbedürftige 2 Familienhaus verfügt derzeit über eine Wohnfläche von ca. 78,27 m², verteilt auf 3 ZKB, im Erdgeschoss. Weitere 130,02 m² stehen Ihnen, auf 5,5 ZKB mit Balkon, im Obergeschoss zur Verfügung.

Sie betreten das Gebäude zum einen über den Haupteingang zur Straße hin gelegen. Zum anderen können Sie das Erdgeschoss über den Hofbereich begehen. Zu den beiden hintereinander gelegen Stellplätze gelangen Sie durch die überbaute Hofeinfahrt. Anhand des Bebauungsplanes stehen Ihnen bei diesem Sanierungsobjekt viele Möglichkeiten offen. Eine breitgefächerte Nutzung lässt Ihnen viel Raum für Ihre Bedürfnisse. Sie benötigen eine Gewerbe Immobilie oder doch lieber ein Wohnhaus? Vielleicht soll es auch eine Mischung aus beidem sein?
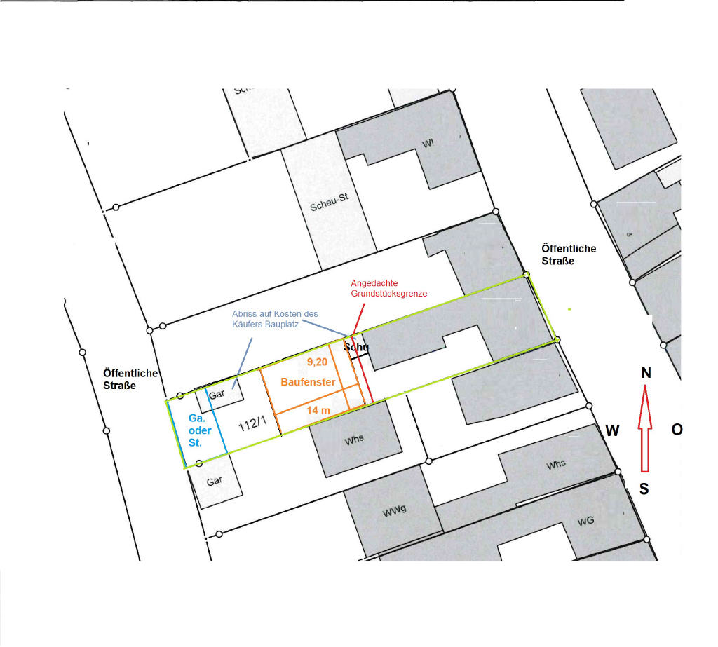
Obwohl sich der Baukörper in einem Wohngebiet befindet sind allgemein auch zur Versorgung dienende Läden, Schank.- und Speisewirtschaften, nicht störende Handwerksbetriebe und Anlagen für kirchliche, kulturelle, soziale, gesundheitliche und sportliche Zwecke erlaubt. Ausnahmsweise zulässig sind Betriebe des Beherbergungsgewerbes, sonstige nicht störende Gewerbebetriebe und Anlagen für Verwaltungen. Das gesamte Grundstück verfügt über 505 m² und liegt zwischen 2 Straßen. Die Grundstücksbreite zu den jeweiligen Straßenseiten hin, liegt bei ca. 9,50 m. Die Längen variieren zwischen 50 und 52 Metern.
Das Sanierungsobjekt beginnt an einer der Grundstücksbreiten und endet nach ca. 23 Metern.

Die restliche Fläche ist abgesehen von einer Garage und einem kleinen, einstöckigen Baus, unbebaut und gerodet. Je nach Ihren Wünschen und Vorstellungen können Sie den dahinterliegenden Bereich weiterhin als Garten verwenden oder Sie nutzen Ihn zur Bebauung eines weiteren Hauses. Wie ersichtlich würden bei einem Neubau das zukünftige Gebäude und die Garage an das auf der rechten Seite bereits neu errichtete Bauprojekt anschließen. Dieser Teil des Grundstücks beträgt ca. 232 m². Das darauf befindliche Baufenster für das Wohngebäude umfasst eine Größe von 14,00 m x 9,5 m und kann mit einer Reihenhauseinheit bebaut werden. Garagen und Stellplätze müssen in einem eigene, zur Straße hin gelegen Fenster, untergebracht werden. Hierzu müssen Sie mit 1,5 Stellplätzen kalkulieren. Unter Berücksichtigung der Abstandflächen können Sie eine Grundfläche pro Geschoss zwischen ca. 81,00 und 104,50 m² rechnen. Dies müsste jedoch durch einen Architekten geprüften werden. Für weitere Details stellen wir Ihnen gerne den dazu gehörigen B-Plan zur Verfügung. Baujahr: 1925 Baujahr des Vordergebäudes
1966 Erweiterung des Obergeschosses und Anbau eines Balkons - Damals ca. 158,20 m²
1986 Um.- und Erweiterungsbau des bestehenden Wohnhauses - Stand heute 208,28 m²

Wohnfläche: Erdgeschoss: 86,96 m²
Obergeschoss: 144,46 m²
Gesamt: 208,28 m²

Nutzfläche: Keller im Vorderen Gebäudeabschnitt
ca. 44,68 m²
Heizraum im Erdgeschoss
ca. 5 m²

Ausstattung:
Öl-Zentralheizung
2 Stellplätze im Hof
Raumaufteilung: Erdgeschoss:
• Flur
• Zimmer 1
• Zimmer 2
• Gäste WC
• Küche
• Flur 2
• Badezimmer
• Zimmer 3

• Heizungsraum
• Öllager

Obergeschoss:
• Flur 1
• Zimmer 1
• Zimmer 2
• Wohn.- und Essbereich
• Balkon
• Küche
• Flur 2
• Badezimmer
• Zimmer 3
• Zimmer 4

Untergeschoss:
• Flur
• Keller 1
• Keller 2
Parkplätze: 2 Stellplätze im Hof
Grundstücksgröße: 505 m²

Darauf entfallen ca. :
Bauplatz ca. 232 m²
2-FMH ca. 273 m²

Energieausweis: Wird gerade erstellt


Fakten:
Objekt: Bauplatz
Nutzungsschablone: Maximal 2 Vollgeschosse inkl. Dachausbau
Beidseitige Grenzbebauung
Max 1 Wohneinheit
Dachform: Satteldach

Grundstücksgröße: Nach der Teilung ca. 232 m²
Parkplätze: Es müssen 1,5 Stellplätze hergestellt werden
Erschließung: Die Erschließungskosten trägt der Käufer

Altlastenauskunft: Für das Grundstück sind nach derzeitigem Kenntnisstand keine Eintragungen im Bodenschutz- und Altlastenkataster vorhanden.
Wir weisen darauf hin, dass sich die Bewertung ausschließlich auf die uns bekannte Vornutzung der Fläche bezieht.
Die Auskunft beruht auf der Erfassung altlastverdächtiger Flächen bis Januar 2021.
Baulastenauskunft: Für das Grundstück sind nach derzeitigem Kenntnisstand keine Baulasten eingetragen.

Abriss: Seitens des Käufers muss lediglich eine Garage und ein kleineres Nebengebäude abgerissen werden. Beide Baukörper sind 1-geschossig und nicht unterkellert.
Grundfläche der Garage: ca. 24 m²
Grundfläche des Nebengebäudes ca. 11 m²

Provision: inkl. MwSt.
Objekt-Nr.: 0-7914 · Online-Nr.: 12387739 · Flächen- und Maßangaben sind ca.-Werte.
Es gelten die Allgemeinen Geschäftsbedingungen des Anbieters.

Immobilien-Schnellanfrage

Ich möchte mehr Infos zu diesem Objekt!
Herr Frau
Vorname*
Nachname*
Telefon
E-Mail*
Ich habe die Datenschutzerklärung gelesen und bin mit der Verarbeitung meiner Daten sowie einer Kontaktaufnahme einverstanden.*
Ausführliches Formular

Anbieter

Sylvia Ams

Immobilien & Vermietungen

Lanzstraße 2a

D-68794 Oberhausen

07254 98590-0

07254 98590-50

E-Mail senden

Kommunikation:
Bürozeiten: Mo. bis Fr. 09:00 - 17:00 Uhr

weitere Häuser

101 m²299.000 EUR
245 m²1.840.000 EUR
158 m²349.000 EUR
172 m²499.000 EUR
Datenschutz  ·   Portal-Impressum  ·   Drucken...  ·  nach oben