Willkommen in diesem besonderen Anwesen, einem ehemaligen Forsthaus mit Geschichte, Charakter und großem Entwicklungspotenzial.
Auf einem weitläufigen Grundstück mit großzügigen Wiesenflächen und teils altem Baumbestand finden Sie hier einen Ort, an dem Ruhe, Natur und Freiheit zu Hause sind.
Das solide errichtete Haus befindet sich in einem funktionstüchtigen, aber renovierungsbedürftigen Zustand. Die Bausubstanz ist gut und bietet eine hervorragende Grundlage für individuelle Modernisierungen und Ausbauideen. Eine ca. 60 qm große Bühne eröffnet zusätzlichen Raum für kreative Projekte oder weiteren Wohnraum.
Neben einer Öl-Zentralheizung verfügt das Objekt über eine Feststoffheizung, die mit Holz befeuert werden kann. Für moderne Ansprüche ist bereits ein Glasfaseranschluss vorhanden.
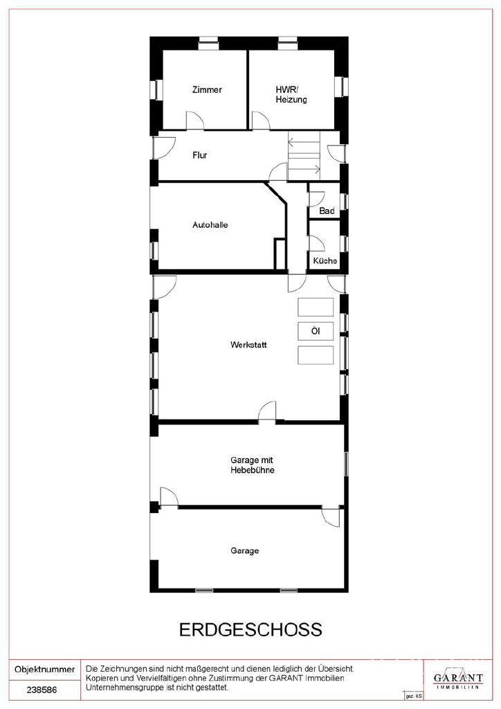
Die großzügigen Garagen bieten viel Platz für Fahrzeuge, Werkstatt oder Hobby, inklusive einer Hebebühne, die sich auch für große Fahrzeuge eignet.
Das Anwesen liegt idyllisch im Außenbereich, umgeben von Natur und Weite, ideal für Familien, Selbstständige, Naturfreunde oder Tierliebhaber, die das Besondere suchen und eigene Ideen verwirklichen möchten.
Hier wartet ein Ort mit Geschichte und Zukunft, bereit, von Ihnen neu belebt zu werden.
Weitere Angebote unter www.GARANT-IMMO.de
* Einbauküche
* zwei Garagen
* Hebebühne
* Carport
* mehrere Außenstellplätze
* mehrere Schuppen
* Glasfaseranschluss
Energiebedarfsausweis Energiekennwert: 328,16 kWh/(qm*a) Energieeffizienz: Klasse H (>250) Heizung: Zentralheizung mit Öl Baujahr laut Energieausweis: 18762 x Garage, 1 x Carport
Provision: 3,57 % (inkl. MwSt.)
Lagebeschreibung
Das Objekt befindet sich im Außenbereich von Böhmenkirch-Steinenkirch.
Energieausweis
216.73.216.15:61122
Objekt-Nr.: 0-9113165 · Interne Nr.: 238586 · Online-Nr.: 12389709 · Flächen- und Maßangaben sind ca.-Werte. Es gelten die Allgemeinen Geschäftsbedingungen des Anbieters.