Kurzexposé
| Bezeichnung |
Fläche |
Einheiten |
teilbar ab |
frei ab |
| Verkaufsfläche |
30,00 m² |
|
|
kurzfristig |
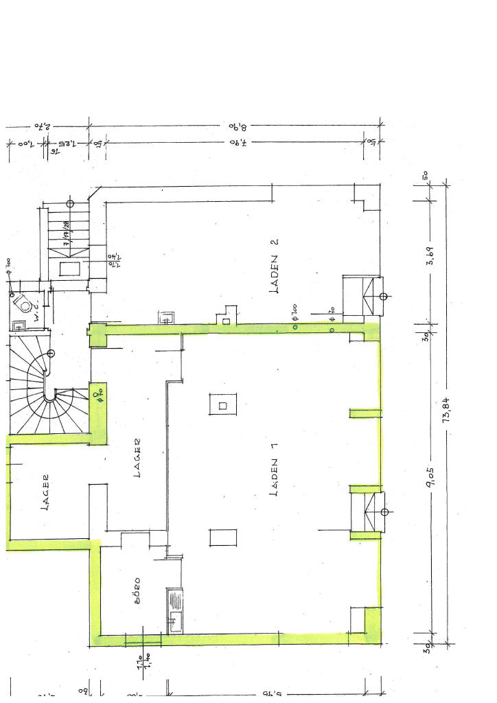
Zur Vermietung steht ein attraktives Ladenlokal in sehr guter, gut frequentierter Lage - direkt am Anfang der Fußgängerzone. durch diese hervorragende Position profitieren Sie von hoher Sichtbarkeit und hoher Passantenfrequenz. Die Verkaufsfläche befindet sich im Erdgeschoss und umfasst ca. 80 m². Großzügige Schaufenster sorgen für optimale Präsentationsmöglichkeiten und viel Tageslicht im Innenraum. Das Objekt eignet sich ideal für Einzelhandel, Dienstleistungsunternehmen, Boutique, Studio oder ähnliche Konzepte. Direkt vor dem Objekt stehen kostenpflichtige Parkmöglichkeiten zur Verfügung - ein klarer Vorteil für Ihre Kunden und Lieferanten.
Zzgl. Mieterprovision: 2,32 (inkl. MwSt.) Monatsmieten
Kaution: 1700Weitere tagesaktuelle Immobilien aus der Region finden Sie auf unserer Homepage unter:
www.eggerbauer-immobilien.de
216.73.217.58:39765